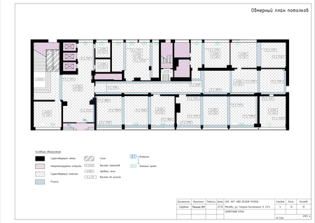
В 1 модуле в рамках проектной работы были сделаны учебные чертежи и обмерные планы в AutoCAD. Часть задания была посвящена чертежу помещения находящийся в корпусе НИУ ВШЭ, по адресу улица Старая Басманная, д 21/4
Original size 2480x1750
Original size 2480x1750
Original size 2480x1750
Original size 2480x1750
Original size 2480x1750
Original size 3500x2480
Original size 2480x1750
Обмерный план
Практическое задание по основам цифрового черчения
Press space bar to start a drag.
When dragging you can use the arrow keys to move the item around and escape to cancel.
Some screen readers may require you to be in focus mode or to use your pass through key
Press space bar to start a drag.
When dragging you can use the arrow keys to move the item around and escape to cancel.
Some screen readers may require you to be in focus mode or to use your pass through key