
В проекте представлены учебные чертежи, выполненные в течение первого модуля в программе AutoCAD по дисциплине «Специальные технологии».
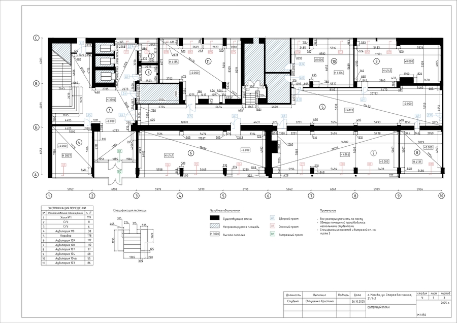
Также в ходе изучения дисциплины Школой Дизайна проводилась обмерная практика в корпусе ВШЭ на Басманной, результаты которой представлены в виде ряда чертежей и включают в себя обмерные планы, планы потолков и спецификаций.
Практические задания
Обмеры кластера