This project is a student project at the School of Design or a research project at the School of Design. This project is not commercial and serves educational purposes

Ландшафт прибрежного города как ключевой фактор, влияющий на часто используемые строительные материалы.

Проанализировав «общий объем», относящийся к ландшафту и доминирующим принципам застройки исторической части города, стоит углубиться в геологическую составляющую, компоненты и материалы, на которых держался весь градостроительный пласт. Изучение данных аспектов позволит увидеть взаимосвязь между геологическими характеристиками рельефа и строительных технологий, а также материалов, впоследствии ставшие частью локального архитектурного языка.

big
Original size 2480x1350

Карьер у села Богатырь, Thomas Taylor Hammond, 1975

Как упоминалось ранее, расположение города определило характер месторождений строительных материалов. Рассматривая рельеф левобережья, можно отметить песчаные, суглинистые отложения, чередующиеся с глинистыми пластами, что объясняет выбор нескольких доминирующих видов компонентов, которые легли в основу строительства. В исторической части города долгое время древесина занимала главенствующую роль, а в другой части город, дома были построены из камня, а где-то даже из сочетания обоих материалов. Как правило, верхний этаж был деревянным, а нижний — каменным для большей устойчивости и пожаропрочности. Подобный характер архитектуры — особенность колорита губернского города, где при подробном анализе планировочного решения можно заметить точное разделение между каменными и деревянными домами. Данное направление способствовало смещению стилей в сторону «народности» и формированию русского зодчества.

big
Original size 2480x1350

Завод в поселке Богатырь, Село Богатырь ГО Жигулевск, 1932-1935 / Выгрузка дров на пристани, Самара, конец XIX века

Однако, вернемся к материалам. Древесина добывалась из прибрежных лесов и переправлялась по Волге, причем срубы для домов заготавливались заранее строителями-стрельцами в верховье реки, и только позже сплавлялись вниз к крепости. Каменные сооружения находились на том же месте: «археологи, раскапывая древние городища, натыкаются на каменные фундаменты» [1]. Нетрудно предположить, что расходные материалы обрабатывали сами же строители по собственным технологиям. Лишь к концу XIX века, с развитием промышленности возросло количество кирпичных заводов, большая часть которых принадлежали местным купцам, которые каждый сезон заключали договор с местной управой на их эксплуатацию. С поставками оборудования немецкой фирмы «Келлер», увеличилось число обжиговых печей.
После обнаружения месторождений известкового камня в 80-х годах в Самарской Луке, в районе села Ширяево-Буерак, место становится центром по производству строительной извести, бутового и отделочного камня. По мере увеличения численности строений заводских корпусов, дворянских и купеческих особняков, доходных домов и административных центров, выросли темпы производства кирпича.

Original size 2480x1350

Погрузка камня на баржи, Ширяево, 1900-1917 / Ширяев буерак, Ширяево, 1894

Архитектурный контекст исторической части города. Влияние на технологии строительства.

Original size 2480x1350

Западная сторона, Самара, Изд. Писчебумажн. магазина «Полиграф», 1904-1908

Продолжая тему деревянного строительства, стоит подробнее рассмотреть эволюцию подобной застройки в Самаре. Такие строения в конце XIX — начале XX века занимали около 80% городской территории. Учитывая печальный опыт пожаров в Самаре в середине и второй половине XVIII века, в ходе которых была уничтожена большая часть деревянных домов, было принято решение о введении Строительного Устава, необходимых мерах противопожарной безопасности, модернизации конструктивных элементов и активному внедрению древесины в строительство города, особенно в причальную архитектуру, благо, как было указано ранее, местность позволяла. Несмотря на общую тенденцию к сносу деревянного исторического наследия, крайне важно проследить на их примере этапы формирования самобытного облика старой Самары.

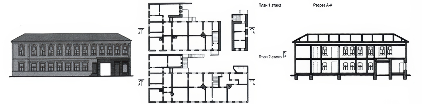
Original size 2480x1350

Вторая женская гимназия, Самара, 1900-1910 / Казанская улица (Алексея Толстого), Самара, 1880-1900

Деревянная архитектура обычно разделялась на два вида: так называемая «крестьянская», представляющая собой «жилища с земляным, либо с деревянным полом, без подклета, с завалинкой, и жилище на подклете, и дома знати, которые отличались от остальной застройки большей площадью и капитальностью, представляя собой ряд срубов на подклетах, соединенных между собой сенями и переходами разнообразных форм» [2]. Впрочем, из-за частых пожаров в городе и быстрому распространению огня, были введены новые правила, согласно которым требовалось частично замещать деревянные конструкции каменными. Таким образом, менялась не только объемно-пространственная структура дома, но и общий вид городского фасада.

Дом мещанки Марии Рафаиловой, арх. Ф. П. Засухин, 1900-1910 / Жилой дом, конец XIX века

Замещение деревянных конструкций имело непосредственное влияние на выстраивание новых архитектурных стилей. К примеру, с уходом от классицизма, деревянных примеров которых в Самаре осталось совсем мало, а каменные представители перестроены в 1850-60 годы, после войны 1812 года произошло смещение в сторону «народности» сначала в русском искусстве, затем и в архитектуре. Несмотря на то, что классицизм оказал большое влияние на архитектурный облик «образцовых зданий» и на формирование типовых решений, в Самаре он не смог приспособиться к сложившимся условиям во многом по причине всплеска экономического и промышленного развития города во второй половине XIX века.
Таким образом, предпочтение было отдано новому стилю — эклектике, что впоследствии проявилось в возникновении так называемого «неорусского стиля», и нашло свое отражение в каменной архитектуре А. А. Щербачева (доходный дом купца Челышова, здание губернской земской Управы и др.). Как бы то ни было, не стоит утверждать, что деревянная застройка была полностью искоренена, ее можно увидеть в виде выпусков бревен, обшитых или необшитых тесом, а также выполняющих утилитарную и декоративную функции (кронштейны, наличники).

Здание Губернской земской управы, арх. А.Зеленко, 1898– 1900 / Больница общества Красного Креста, 1902

С приходом эклектики в конструктивной композиции зданий исчезает присущее классицизму следование особым правилам, трактуемые ордерной системой. В данном случае, она скорее выполняет декоративную функцию и становится элементом художественной структуры сооружения. В деревянном зодчестве, наоборот, сохраняется не только фронтальность, осевая композиция, но и традиционные ордерные элементы приобретают форму деталей, украшенных уникальной резьбой. Подобная тенденция сохраняется и в каменной архитектуре, тем более, что на рубеже XIX–XX веков строения из камня составляют большую часть центральных кварталов Самары.
В связи с ростом потребностей и культурного уровня населения, разворачивается большая кампания по строительству лечебных, благотворительных, просветительских и других учреждений, тем самым появляется необходимость в разработке качественно иных зданий, новых конструктивных приемов, применения строительных материалов. Благодаря повсеместному внедрению эклектики и присущему ему декоративному убранству, было построено множество зданий со стилизованными декоративными формами разнообразных архитектурных направлений: от готики до барокко. Позже, появление нового стиля модерн будто бы завершило общий панорамный вид городской застройки, сделав его одновременно уникальным, и в то же время единым за счет поэтажного членения и ритма оконных проемов.

Original size 2480x1350

Карта, иллюстрирующая количество деревянных, каменных и смешанных типов домов

Однако, вновь обратимся к застройке исторической части Самары, главным образом, Самарского и Ленинского районов, а также прибрежных территорий. Несмотря на присущую эклектике декоративность, на улицах Самары постепенно формировалась некая общность фасадов зданий, устанавливался единый типовой их облик, которые совместно друг с другом, образовывали неповторимые ритмы. В основном, массовая застройка состояла из каменно-деревянных, каменных одноэтажных или двухэтажных строений с вкраплениями кирпичной кладки. Они назвались по- разному: «клети», «пятистенки», «трехкамерные постройки», «крестовики». [2]

«На центральных самарских улицах главным становился торцевой фасад здания. Это было обусловлено дороговизной земли, затесненностью и неправильной формой участков под строительство. Таким образом, свойственная для эклектики однофасадность нашла отражение при застройке центра Самары. Фасады, не зависящие от внутренней планировки, превращались в отвлеченную оболочку здания» [2]

Купеческая природа города не могла не отразиться на формировании уникальной застройки. Так, возросшая торговая и хозяйственная роль Самары способствовала возникновению лавок, небольших одноэтажных домов, как правило, кирпичных, которые сочетали в себе две функции в одном здании: жилую и торговую. Строение имело несколько входов, главный, с улицы, для покупателей и черный вход. Принято считать, что подобные дома брали свое начало с домов, которые располагались на пересечении улиц Ярмарочная и Ульяновская. «По объемно-планировочному решению большинство из них представляло собой вытянутый в глубину дворового места параллелепипед, торцом выходящий на улицу и перекрытый двускатной или односкатной крышей <…> в плане лавка могла оставаться одним помещением и не делиться перегородками, для более позднего времени характерные лавки, разделенные перегородками на два-три помещения» [2]

Подведение каменного этажа под существующий деревянный одно- или двухэтажный дом / Надстройка деревянного этажа на существующее каменное строение

По причине частого возникновения пожаров, в кварталах с деревянной застройкой устраивались брандмауэры — еще одна особенность, присущая исторической застройке Самары. Это были стены, возводимые поперек дома и выше крыши здания. Изготавливались из кирпича или булыжного камня. Брандмауэрная стена вносила существенные изменения не только в конструкцию, но и в фасадное оформление дома. Данный конструктивный элемент являлся своеобразным продолжением нижней стены, а деревянные балки верхних этажей примыкали к нему. Таким образом, со стороны фасада на этаже, выполненном из дерева, прослеживались каменные стены.

I тип: первый (или цокольный) этаж кирпичный, второй, реже третий — деревянный

Исходя из вышесказанного, можно сделать вывод о том, что несмотря на определенные исторические изменения, переход на новые технологии строительства, стилевые особенности, адаптацию под условия (частые пожары), в Самаре выстроился довольно ровный ритм общегородской панорамы, где каждое строение не спорило по масштабу и пропорциям с соседним, а лишь дополняло ее. Данный эффект был достигнут благодаря многим факторам. Первым из них можно назвать вышеупомянутый одинаковый принцип строительства из двух материалов, что визуально разделяло линию улицы. Второй фактор заключается в соразмерности этажей, идеального соотношения высоты, ширины, а также следования логике повторения и модельной сетке, благодаря которой формировался вертикальный ритм окон и пилястр. Важно отметить, что благодаря этому принципу, зритель будто бы погружался в историческое наследие Самары, что сделало город самобытным и единственным в своем роде.

Original size 2480x1350

Общий вид города, Открытка, 1906 — 1915

Необходимо подчеркнуть, что архитектурный и ландшафтный контекст, в который встраивается здание речного вокзала, практически не изменился со строительства большинства расположенных построек в данном районе города. Рельеф, характерный для прибрежной территории, также остался прежним, лишь впоследствии приобрел более благоустроенный облик и разделившийся на несколько уровней.

Original size 2480x1350

Набережная реки Волги, А. Брянов, Открытка Полиграфкомбинат г. Калинин, 1960 — 1962

Не стоит забывать и про прибрежную зону, ландшафт и архитектурный контекст которой напрямую должен будет взаимодействовать с реконструированным зданием речного вокзала. По причине того, что архитектурных построек на данном участке расположено довольно мало, роль формообразующего элемента выполняют плавные склоны спусков к набережной, таким образом, образуя ступенчатую систему застройки. Благодаря подобному ландшафту, со стороны городской панорамы и каждой улицы Самары посетитель может выйти на береговое пространство.
Горизонтальная композиция, создаваемая за счет архитектурных объектов, расположенных вдоль набережной, также является частью пластичной оси города. Следовательно, сам рельеф и плавность его перепада предрасполагает к вплетению в историческую ткань Самары новой концепции речного вокзала, который, с одной стороны, станет частью прибрежной территории, а с другой, не будет нарушать масштабность и общий внешний вид городской панорамы.

Анализ текущей ситуации в здании Речного вокзала.

Проанализировав архитектурный контекст выбранного места и его характеристики с точки зрения проектирования и художественных решений, стоит вернуться к изначальному объекту для выявления существующих проблем, которые стоят перед автором.

Original size 2149x1350

Речной вокзал, Самара, 1980-1985

Как было упомянуто ранее, нынешнее здание Речного вокзала было введено в эксплуатацию в 1971 году. Вопрос присвоения зданию статуса объекта культурного наследия неоднократно обсуждался многие годы, поскольку шла речь о сохранении подлинного облика здания советского модернизма. В результате, в ноябре 2025 года было принято решение о присвоении данного статуса, где под защиту попадают многие конструктивные и фасадные элементы здания. Однако, оценивая состояние здания на текущий момент, можно сделать однозначный вывод о крайне неудовлетворительном уровне сооружения.

Original size 2480x1350

Речной вокзал, Самара, настоящее время

Главный фасад и кровля были подвергнуты существенным изменениям: добавлены современные антенные установки, кондиционеры, рекламные панели и навесы — пристройки, что значительно повреждает визуальную целостность архитектурного ансамбля и общее восприятие его как объекта общественного значения. Кроме того, нарушается внутренняя навигация пассажиропотока внутри самого здания: ввиду наличия арендаторов, здание поделено на две части, из-за чего площадь пользования самого вокзала не только значительно сократилась, но и ограничивает выбор досуга посетителей и гостей города. Стоит отметить, что наличие чужеродных объектов в контуре здания, особенно, без явной концепции, не вписывающейся в локальный контекст, также ухудшает восприятие города как у самих жителей Самары, так и у гостей, посещающих город по пути на судоходном транспорте.

Для проведения процедуры реконструкции необходимо выявить архитектурные и конструктивные особенности сооружения, а также технологии, которые использовались при возведении объекта. Комплекс зданий из речного вокзала и гостиницы «Россия» представляет собой ассиметричную композицию, состоящую из двух объемов: горизонтальный, вторящий прибрежной оси городской набережной, и вертикальный объем гостиницы в роли доминанты и соединительного элемента между рельефом города и берега Волги. В дополнение, фасад имеет декоративную ценность: со стороны реки — над главным входом в вокзал расположена композиция на морскую тематику, выполненная из медной чеканки.
Нужно также принять во внимание технологии строительства, используемые на объекте, для большего уровня совместимости материалов и соблюдение оригинальных методов. В связи с тем, что здание было построено в стиле советского модернизма, преимущественно использовались железобетонные конструкции и монолитные перекрытия. Расположение вокзала у линии берега, имеющего высокий угол спуска, подразумевало укрепление подпорных стен, а также защиту от подмыва и смещения почв.

Original size 2480x1350

Выход на набережную / Главный вход, Речной вокзал, настоящее время

Таким образом, необходимо определить приоритетные задачи, которые стоят на данный момент. В первую очередь, это сохранение объемно-пространственной композиции здания. Затем сохранение исходного внешнего вида фасада: демонтаж чуждых элементов, нарушающих зрительное восприятие сооружения. Адаптация инженерных систем и внутреннего пространства должна обеспечивать минимальное вмешательство в его конструктив. Требуется также восстановить оригинальную конструкцию главного входа, чтобы не только подчеркнуть взаимодействие исторической ткани города и набережной реки Волги, но и вернуть роль вокзала как «врат в город».

Формулирование концепции.

Формулирование концепции реконструкции вокзала также предполагает обращение к социальным запросам населения. Целесообразно адаптировать изначальное историческое здание к требованиям социальной инфраструктуры для всех категорий граждан, в том числе для маломобильных групп населения. Новое здание речного вокзала должно отойти от грубого, недружелюбного внешнего облика и представлять собой комфортную, открытую среду. Данные факторы крайне необходимы вследствие увеличения количества числа пассажиров с разных точек не только городского пространства, но и со стороны водного транспорта, включая туристические и междугородние маршруты. Важно обеспечить требуемое количество общественных пространств и мест для разных типов досуга, чтобы сделать речной вокзал точкой притяжения городской активности.

Original size 2480x1350

Речной вокзал, Самара, вид сверху, настоящее время

Для определения необходимых зон требуется также проанализировать ситуацию с пассажиропотоком на речном вокзале, так как водные маршруты популярны как среди жителей города и путешественников, прибывающих на туристических теплоходах, так и среди проживающих на левом берегу Волги. Согласно открытым источникам, Самарский речной вокзал имеет пик пропускной способности примерно 450 человек в час, что явно недостаточно для комфортного времяпрепровождения пассажиров, особенно в сезон речных перевозок.
Таким образом, стоит подчеркнуть, что для такого количества пассажиров необходимы зоны для комфортного отдыха и досуга. Так, например, из очевидного, следует предусмотреть наличие зон ожидания с комфортными сидениями и панорамными окнами с видом на реку. Кроме того, через развитие культурных и общественных пространств, жители города и люди, которые прибывают в город по Волге, смогут познакомиться с историей и наследием Самары. Такие фестивали как «Пластилиновый дождь» и «Волга-фест», в свою очередь, могут стать отличным поводом посетить город на Волге. А здание речного вокзала — современной площадкой, способствующего созданию уникальной атмосферы, вовлекая прибывших посетителей в захватывающий мир искусства.

На основании вышесказанного, стоит определить ясную концепцию реконструкции речного вокзала, как создание пространства, в котором есть место как транспортной, так и культурной функции. Вокзал станет символическими воротами не только в пространство города, но и соединительным элементом между исторической тканью Самары с его архитектурным наследием, и ровной водной гладью величественной реки. Впоследствии здание вокзала будет рассматриваться как центральный элемент волжского туристического маршрута, подчеркивая имидж города, который находится в постоянном диалоге с рекой. По прибытию в Самару, путешественник сможет насладиться и атмосферой гостеприимства, и самобытностью старинного русского города на Волге.

Bibliography
Show
1.

Строительный комплекс и архитектура Самарской губернии: вчера, сегодня, завтра: [Кн.- альбом] / Гл. ред. А. А. Латкин. — Самара: Науч.- техн. центр «Зодчий», 2001. — 463 c. : ил. ; 30 cm.

2.

Деревянная и каменно-деревянная архитектура Самары конца XIX — начала XX веков / В. А. Самогоров, Е. А. Сысоева, Ю. Д. Чёрная; М-во образования и науки Рос. Федерации, Самар. гос. архитектур.-строит. ун-т. — Самара: Изд-во Самарского государственного архитектурно-строительного университета (СГАСУ), 2011. — 400 с. : ил. ; 29 см.

Image sources
Show
1.

1.https://img.pastvu.com/d/4/x/k/4xkmoffyz762k7g7ds.jpg (дата обращения 02.11.2025)

2.

https://img.pastvu.com/d/q/3/r/q3rldtok4ub9mzvjh9.jpg (дата обращения 03.11.2025)

3.

https://история-самары.рф/i/trans/volga/92.jpg (дата обращения 04.11.2025)

4.5.6.

https://img.pastvu.com/d/k/a/7/ka7uombprqp4kkzb16.jpg (дата обращения 06.11.2025)

7.

https://pastvu.com/_p/a/h/u/1/hu1oohilitmp8ba819.jpg (дата обращения 06.11.2025)

8.

https://meshok.net/i/289708879.0.jpg (дата обращения 05.11.2025)

9.10.11.12.13.14.

https://img.pastvu.com/d/t/6/y/t6y07gt0cryzm6ghxc.png (дата обращения 07.11.2025)

15.16.17.

https://kartarf.ru/images/heritage/1080/1/11009.jpg (дата обращения 03.11.2025)

18.19.20.

Изображение, взятое из книги: Самара губернская: 160 лет в зеркале архитектуры: [альбом чертежей фасадов зданий города Самары] / Центр. гос. арх. Самар. обл.; [ред.-сост. Г. В. Галыгина]. — Самара: Книга, 2011. — 207 с. : ил., факс. ; 21×25 см., стр. 132

21.

Изображение, взятое из книги: Деревянная и каменно-деревянная архитектура Самары конца XIX — начала XX веков / В. А. Самогоров, Е. А. Сысоева, Ю. Д. Чёрная; М-во образования и науки Рос. Федерации, Самар. гос. архитектур.-строит. ун-т. — Самара: Изд-во Самарского государственного архитектурно-строительного университета (СГАСУ), 2011. — 400 с. : стр. 52

22.

Авторская иллюстрация, по мотивам изображения (см. п. 2 Библиография), стр. 216

23.

Авторская иллюстрация (см. п. 2 Библиография), стр. 216

24.

4 изображения в слайдере взяты из книги: Деревянная и каменно-деревянная архитектура Самары конца XIX — начала XX веков / В. А. Самогоров, Е. А. Сысоева, Ю. Д. Чёрная; М-во образования и науки Рос. Федерации, Самар. гос. архитектур.-строит. ун-т. — Самара: Изд-во Самарского государственного архитектурно-строительного университета (СГАСУ), 2011. — 400 с. : стр. 205

25.

https://img.pastvu.com/d/g/1/n/g1nep72i6hr2w2q8nr.jpg (дата обращения 04.11.2025)

26.

https://pastvu.com/_p/a/2/b/5/2b55rvhppkcmz9eglt.jpg (дата обращения 05.11.2025)

27.

https://img.pastvu.com/d/v/9/x/v9x45w4w6y7ufghejr.jpg (дата обращения 05.11.2025)

28.29.30.31.32.
Chapter:
1
2
3
4
5