
В проекте представлены учебные чертежи, выполненные в течение первого модуля в программе AutoCAD по дисциплине «Специальные технологии».
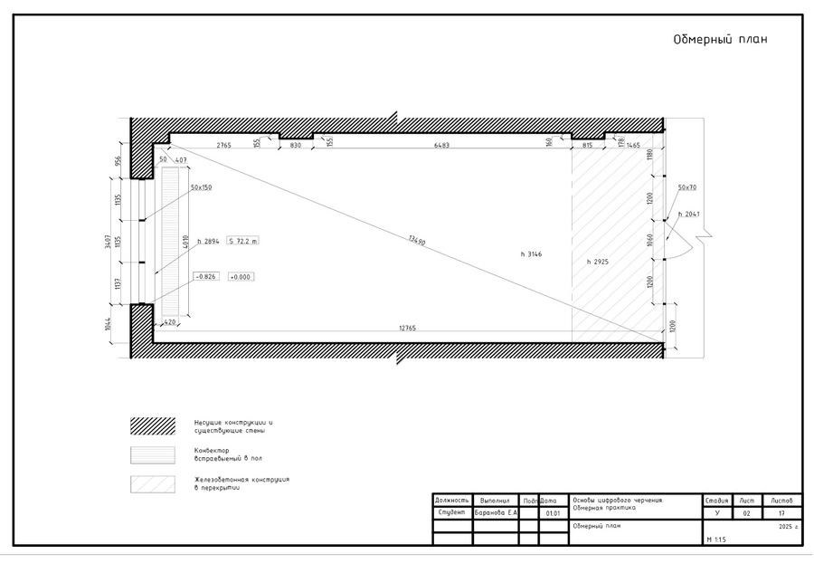
В ходе изучения дисциплины Школой Дизайна проводилась также обмерная практика в канатном цехе с водонапорной башней завода «Красный гвоздильщик» (новом корпусе НИУ ВШЭ)

обмерный план