
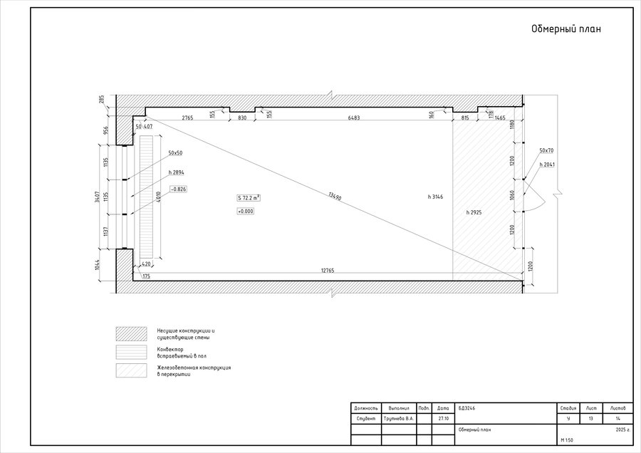
Проект посвящён изучению ключевых функций программы AutoCAD. Альбом включает в себя различные практические задания. Также в нём представлены обмерные планы помещения НИУ ВШЭ в Санкт-Петербурге и план перегородок для учебного кластера в московском кампусе ВШЭ.
Практические задания

План возводимых перегородок
Обмерный план/ Обмерный план. Коммуникации