
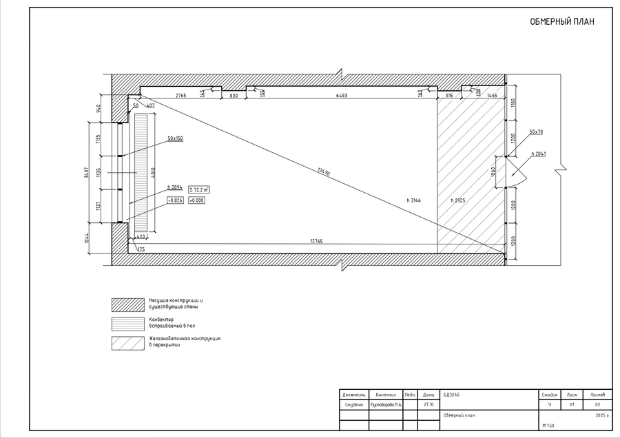
Проект посвящен изучению основных функций программы AutoCAD. Альбом состоит из практических заданий, планов помещения, находящегося в Канатном цехе с водонапорной башней завода «Красный гвоздильщик», новом корпусе НИУ ВШЭ и из плана возводимых перегододок для проекта учебного кластера.
практические задания

план возводимых перегородок
обмерный план