
Учебный альбом, отражающий результаты освоения курса «Основы цифрового черчения»

Учебные чертежи задания № 1: Узоры

Учебные чертежи задания № 2: Сопряжения

Учебные чертежи задания № 3: Архитектурные обломы
Учебные чертежи задания № 4: Декоративные вазы


Учебные чертежи задания № 5: Проекции
Учебный чертеж задания № 6: План возводимых перегородок
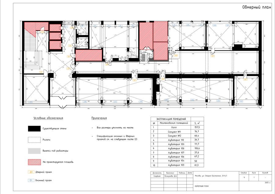
Обменная практика: Обмерный план/Спецификация дверных и оконных проемов/план потолка в кластере Школы Дизайна на Старой Басманной 24/4с1