

ЖК «Первомайская 1А» — бизнес квартал в центре Тюмени с брутальной эстетикой: строгие линии фасадов, величественность лабрадорита и воздушное панорамное остекление задают тон его характеру. Заказчик обратился к нам за созданием дизайн-проекта, который бы продолжил эту архитектурную концепцию.
Нашей студией были сняты замеры апартаментов, а далее я начертила обмерный план помещения.

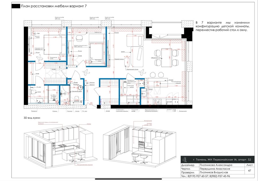
Следующий этап — планировочное решение. На основе брифа, заполненного заказчиком, я зонировала помещение для всех членов семьи, выделила место для просторной гардеробной, постирочного блока и гостевого санузла.
В результате получены несколько вариантов планировочных решений, которые я презентовала заказчику.


После обсуждения планировочных решений с заказчиком, был утвержден финальный вариант.

Утвержденное заказчиком планировочное решение
Брутальный минимализм в концепции для заказчика-строителя
Следующий этап — создание мудборда интерьера. Предложенное мной стилистическое решение также учитывало интересы заказчика: цветовое решение выдержано в монотонных оттенках, а элементы мебели уникальны в своей простоте форм.
Поскольку заказчик — строитель, в концепцию интерьера включены детали, передающие эстетику его деятельности: металлические элементы, необработанные грубые формы натуральных материалов.
Мудборд проекта
После согласования планировочного решения и мудборда, я приступила к созданию 3D коллажей в программах Sketch Up и Procreate. Коллажи как инструмент сочетают в себе наглядность объёмной визуализации и гибкость правок. Они помогают быстро оценить композицию, цвет и атмосферу проекта, экономя время на рендеринг и доработки. Благодаря им можно на раннем этапе согласовать концепцию с заказчиком, избежав сложных переделок в будущем.


Кухня-гостиная


Мастер-спальня


Детская


Мастер-санузел