

В рамках проекта «level four» я разработал дизайн интерьера для кластера дизайна среды, расположенного в здании HSE ART AND DESIGN SCHOOL
/ Концепция

Вдохновением для моей работы послужили интерьеры зарубежных школ дизайна и моды (London College Of Fashion, Westfield State University), а также вид небольших мануфактурных цехов и инженерных студий.
В процессе работы был проведен опрос среди студентов HSE ART AND DESIGN SCHOOL, из которого стало известно, что большинству нравится существующий интерьер остальных кластеров школы дизайна, поэтому было решено спроектировать пространство, способное гармонировать с остальными частями здания

В основе моих решений лежит идея о том, что интерьер дизайнерского вуза должен быть подобен «чистому холсту», пустоту которого должны заполнять работы учеников. Следовательно, среди цветовых решений, применимых к стенам и мебели, не будет акцентных элементов. Акценты будут достигаться за счет непосредственно производных от творчества студентов (макеты, плакаты, стилизованные чертежи).
/ Детали интерьера
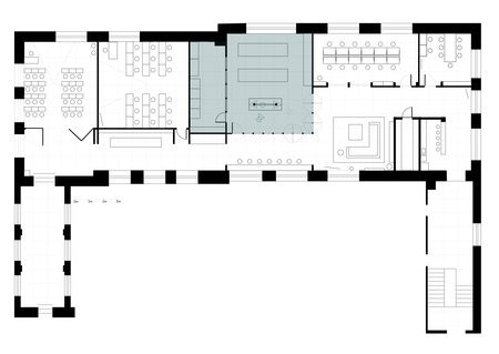
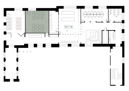
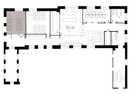
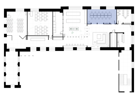
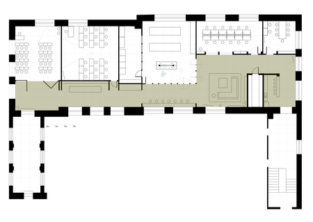
Планировочное решение
/ Мастерская

/ 2 стола для работы стоя
/ зона для фотосъемки
/ большой стеллаж для хранения материалов
/ отдельная вентелируемая зона для покраски и обработки макетов
/ Компьютерный класс

/ 18 рабочих мест
/ расстояние от первых столов до проектора 2 м
/ экран для проецирования 220×220
/ постеры студентов
/ Лекторий

/ 21 постоянных мест
/ дополнительные стулья
/ экран для проецирования 220×220
/ шумоизолирующая штора
/ дверь, позволяющая расширить пространство
/ Коворкинг

/ 12 мест с компьютером
/ 1 место для индивидуальной работы
/ стол для работы стоя
/ постеры студентов
/ Зона отдыха/коридор

/ зона с диваном и креслом
/ полки для размещения выставочных макетов
/ библиотека с учебными материалами
/ стол для групповой работы
/ постеры студентов