
Кабинет директора — мой первый полностью самостоятельный проект. Главной задачей было гармонично подобрать мебель в уже существующий интерьер.


Вид кабинета
В первую очередь я сделала фотографии помещения и сняла его замеры, учитывая местоположение розеток, а далее начертила обмерный план в Archicad.

Обмерный план помещения
Изучив пожелания заказчика, я представила варианты планировочного решения. Мебель расположена так, чтобы максимально сохранить солнечный свет, не возводя массивные конструкции у окна, а зона отдыха наоборот приближена к свету.
При создании планировочного решения я обязателно учла местоположение розеток: доступ к компьютеру организован через отверстие в столешнице, торшер в зоне отдыха расположен вблизи розетки, а розетки у стеллажа скрыты, поскольку они не требуются.
Варианты планировочного решения (вариант 2 — согласованный)
После согласования планировочного решения я приступила к разработке мудборда для помещения. Поскольку заказчик — директор нефтяной компании, концепция предполагала сдержанную цветовую гамму с преобладанием брутальных элементов: массивный дуб в темном шпоне, кожаные вставки и черно-белые акценты. Учитывая существующий фон, я стремилась избежать цветовой перегрузки, создавая лаконичную палитру, способствующую рабочей концентрации. В качестве выразительного акцента была добавлена настольная лампа — элемент, который притягивает взгляд.
Мудборд кабинета
После согласования мудборда я разработала 3D коллажи кабинета.


3D коллажи кабинета
Далее я детально проработала конфигурацию стола и представила идеи заказчику.


Варианты решения конструкции стола
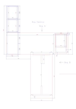
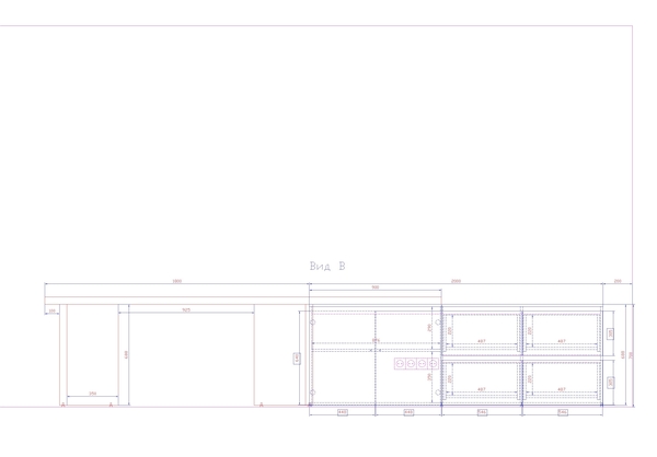
В процессе работы над этим проектом я впервые поработала с подрядчиками самостоятельно: нашла исполнителя, составила ТЗ и проработала мебель по наполнению.


Чертеж стола от подрядчика

Далее я составила смету по проекту, согласовала ее с заказчиком. Проект находится на этапе изготовления основного элемента кабинета — стола.