
Альбом чертежей выполнен в рамках учебного проекта по освоению программы Revit, представлен полный комплект проектной документации. Интерьер студии основан на нежной бежевой палитре с акцентами: благородный красный и тёмно-зелёный в сочетании с деревянной мебелью и выразительной акцентной плиткой. Все это создает гармоничный и запоминающийся образ пространства


Эскизные визуализации
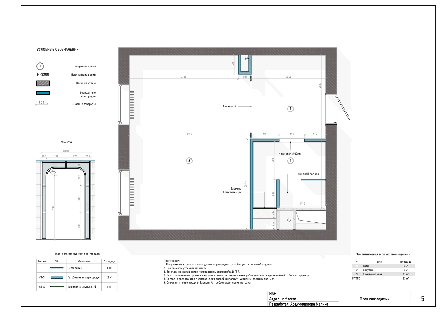
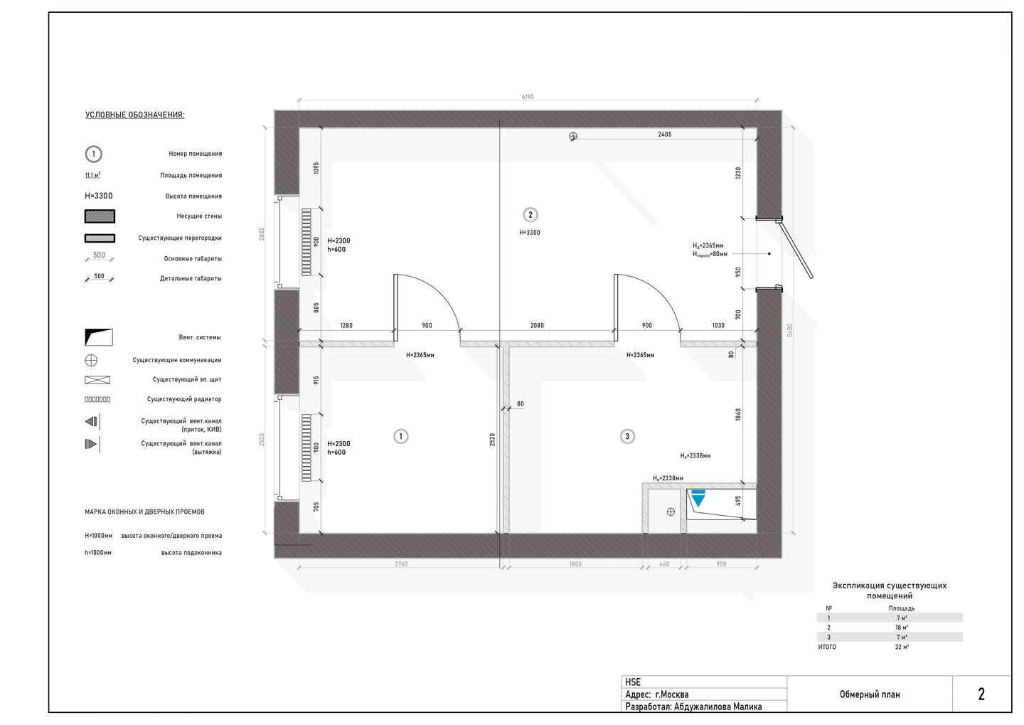
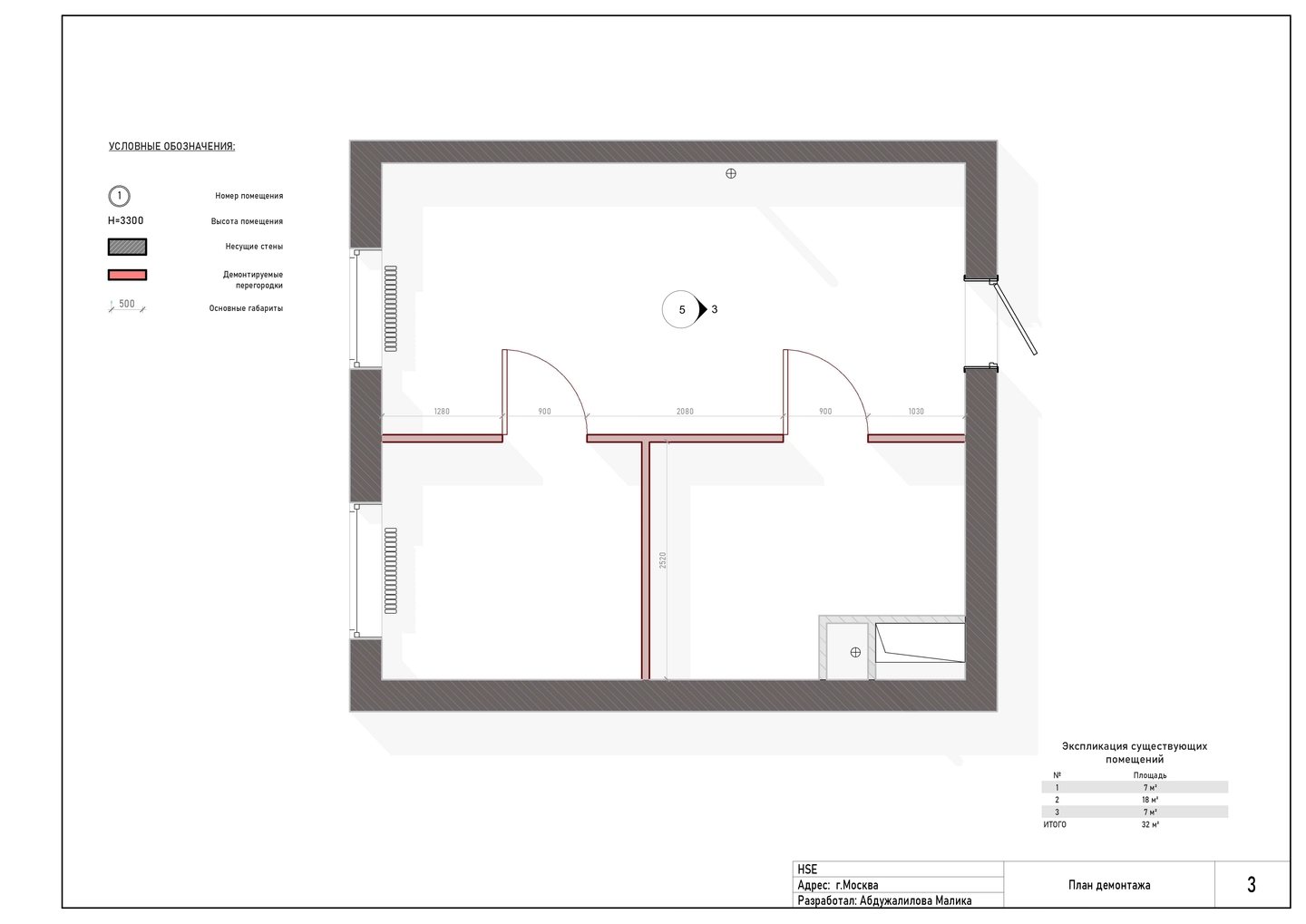
План обмерный, монтаж, демонтаж
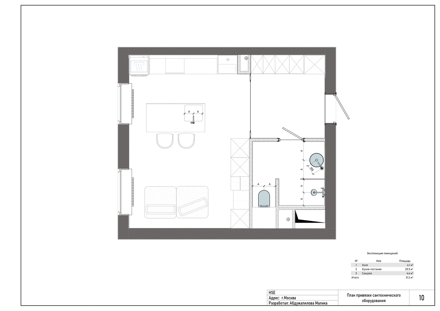
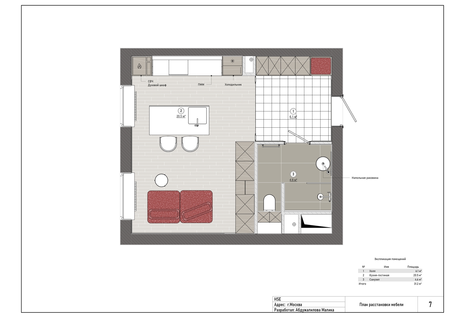
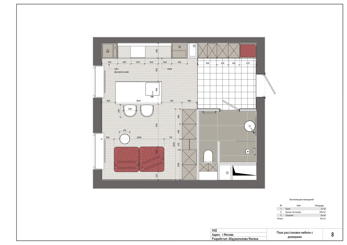
Планировочное решение, сантехника
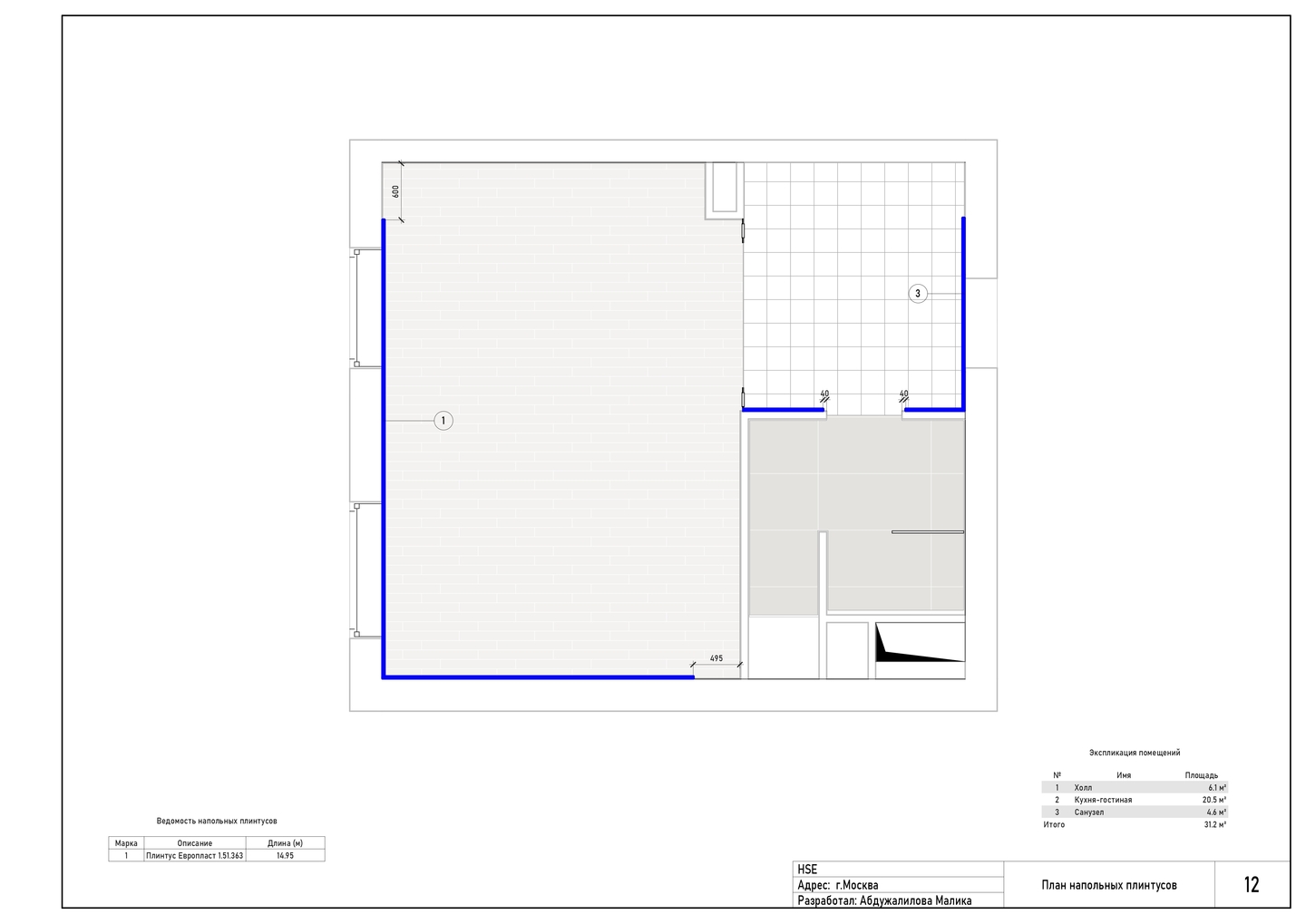
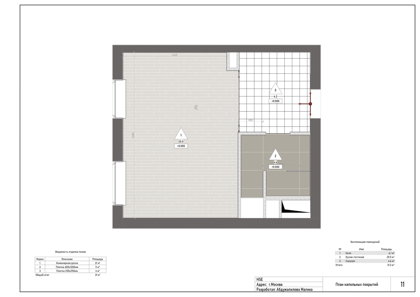
Отделка
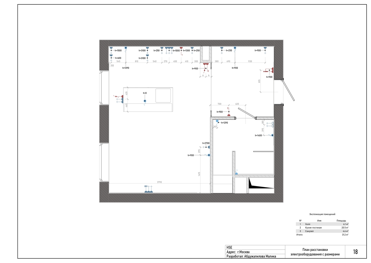
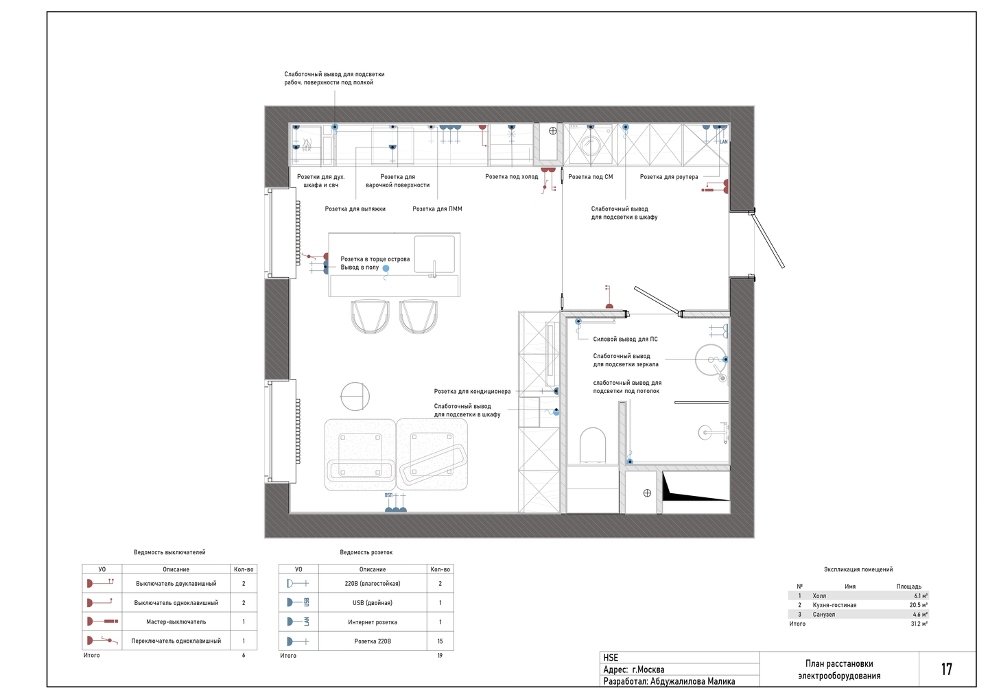
Освещение и электроприборы
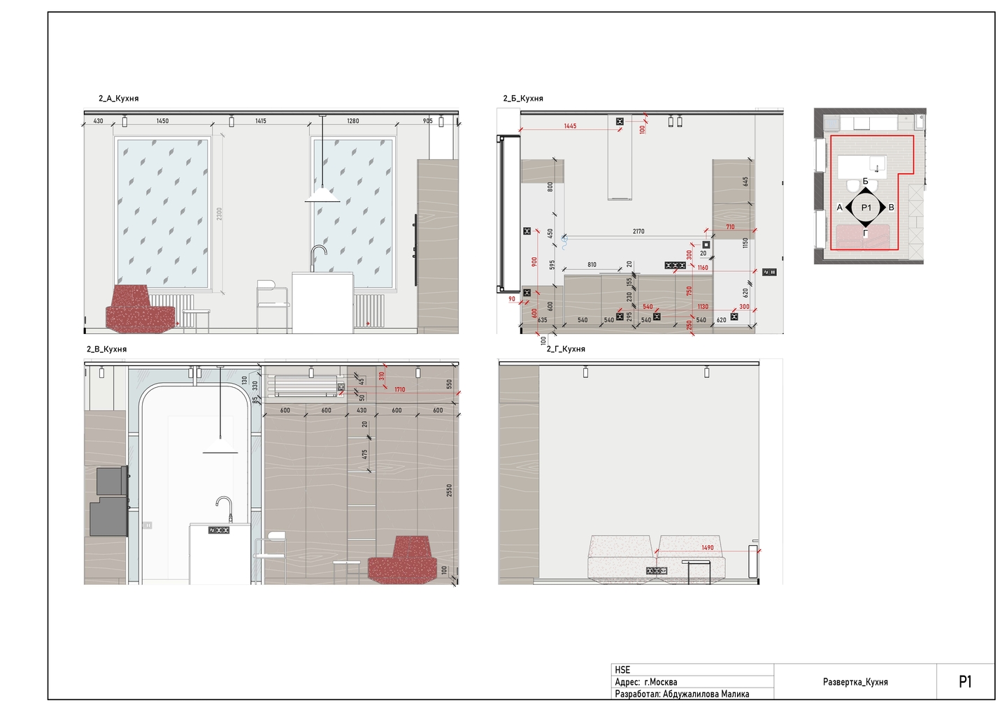
Развертки