
Калининградская область, г. Светлогорск

Светлогорск расположен на побережье Балтийского моря, в тридцати километрах к северо-западу от города Калининграда. 29 марта 1999 года Светлогорск признан курортом федерального значения. Город является туристическим и культурно-деловым центром на Балтийском взморье. Численность населения города — 16.771 человек (2023). Единственный в России город, являющийся членом движения «Медленный город»
Проблематика
Растущая популярность региона привлекает сегмент образования для проведения съездов и мероприятий. Статус региона как курортного сильно повысил спрос на бронирование номеров отелей и гостиниц. В сезон спрос превышает предложение, отели забронированны сильно заранее.
Решением стало проектирование образовательного центр курортном городе с комфортным размещением и большой зоной для проведения мероприятий, стратегических сессий, хакатонов
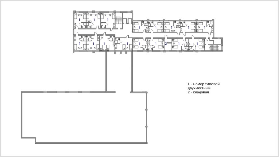
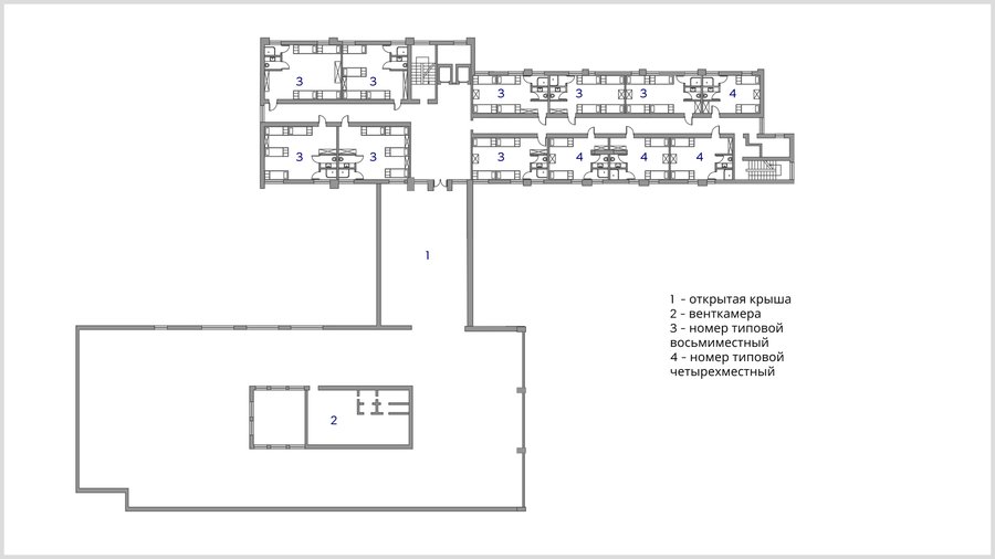
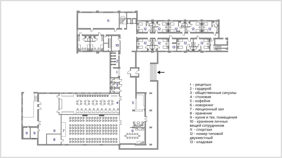
Планировочное решение

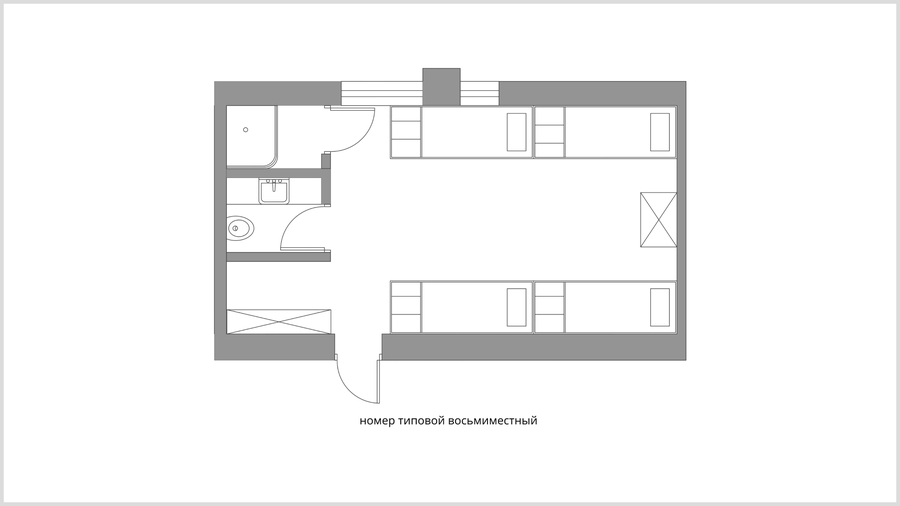
Типовые номера
Общественная зона
Двухместный номер
Двуместный номер предназначен для размещения взрослых людей, которые приезжают на конференции и образовательные сессии
Восьмиместный номер
Большой номер на восемь человек предназначен для размещения школьников и подростков, которые принимают участие в хакатонах или написании финальных этапов олимпиад