
Концепция и мудборд
Создание современной, психологически комфортной и многофункциональной образовательной среды, которая выходит за рамки традиционной аудитории, где интерьер становится не просто местом для учёбы, а живым организмом, который подстраивается под разные потребности, поддерживая как продуктивность, так и психологическое благополучие учащихся.

Основой является продуманный баланс: нейтральная, успокаивающая база в виде бежевых и песочных тонов стен и пола создаёт ощущение тепла, стабильности и визуального простора, что способствует снижению тревожности и позволяет студентам долго сохранять концентрацию. При этом стимулирующие, но не агрессивные акценты в мебели (терракотовые, оливковые) — вносят необходимый импульс энергии, пробуждают творческое мышление и не дают пространству стать монотонным.
Эта среда органично объединяет в себе несколько функций, становясь универсальным пространством для работы, общения и отдыха.

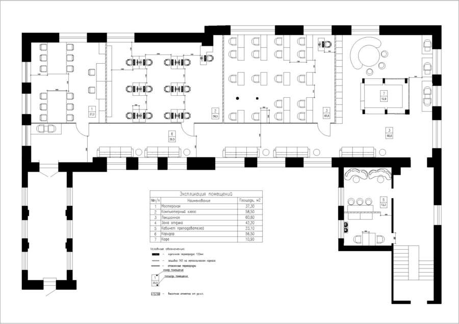
План размещения мебели с экспликацией помещения
Визуализации
Коворкинги в зоне отдыха
Зона отдыха
В данной зоне предусмотрен шкаф для хранения личных вещей учащихся, также там находится большой диван, где студенты смогут отдохнуть между парами


В коридоре находятся удобные и вместительные диваны.
Также предусмотрена зона для работ студентов. На сетку можно развесить фотографии работ, далее располагается доска для заметок и рисунков, а за ней расположены полки, куда можно поставить небольшие макеты.
Лекционная
Компьютерный класс


Мастерская
Зона мастерской оборудована большими столами для групповых работ. Также есть два стола для «грязных» работ. Рядом с рабочими столами расположены шкафы для хранения материалов и инструментов


Кабинет преподавателей
Кабинет преподавателей разделен на две секции. В первой располагаются рабочие столы и шкафы для хранения. За стеклянной перегородкой находится отдельная зона отдыха, где есть удобные диваны, Большой стол для приема пищи и зона для заметок и важной информации
Клаузура рабочего места

