Original size 2480x3500

Дизайн-проект молодежного пространства для архитекторов

// Концепция

Мой проект — это молодёжное пространство для людей архитектурной направленности, где можно работать, учиться и общаться в профессиональной среде. Основная задача — создать удобное и спокойное место для работы над проектами, получения новых знаний и поиска полезных контактов. Пространство оформлено в стиле античных храмов в современной интерпретации: простые колонны, строгие формы, светлые материалы и современные технологии. Такой дизайн создаёт структурированную рабочую атмосферу без лишних отвлечений. Внутри предусмотрены рабочие зоны, места для встреч, небольшая обучающая площадка и зона для общения. Проект ориентирован на студентов и молодых специалистов в сфере архитектуры, которым важно иметь пространство для продуктивной работы и профессионального роста.

// Расположение

Здание на адресе Старая Басманная 21/4 — бывшая городская усадьба, построенная в 1801 году по проекту архитектора Р. Р. Казаков для князя А. Б. Куракин.
С течением времени усадьбу неоднократно перестраивали и меняли её назначение: там располагались межевой институт, архив Министерства юстиции, коммерческое училище, затем в советское время — промышленный институт. 
 Мне показалось логичным сделать архитектурное пространство в здании старой усадьбы.

big
Original size 2480x1750

Рядом располагается множество красивых усадьб, что вероятно будет привлекать внимание молодежи архитектурной направленности.

big
Original size 2480x1750

// Цветовая палитра

Original size 3500x2480

// Референсы

Original size 3500x2480

Мудборд

Original size 3500x2480

Коллаж

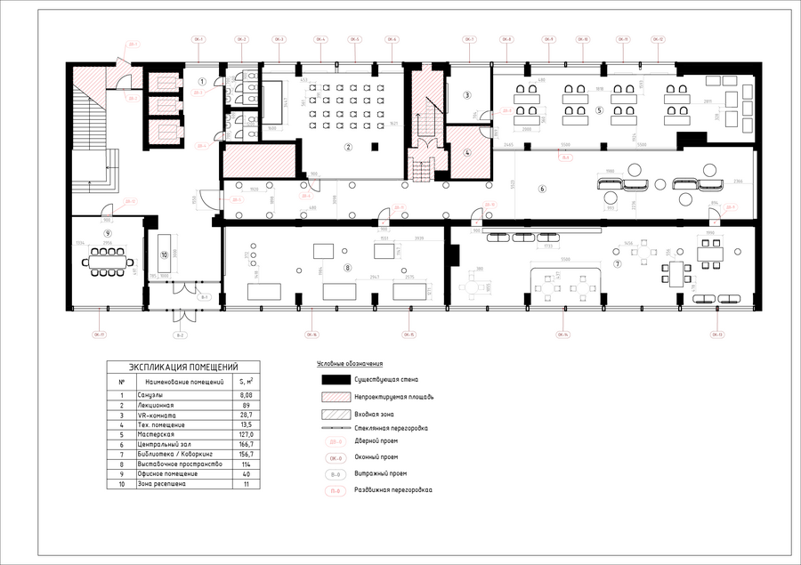
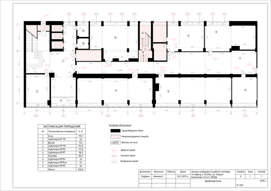
// Чертежи

0

// Визуализации

Original size 3500x2480
Original size 3500x2480
Original size 3500x2480
Original size 3500x2480
Original size 3500x2480
Original size 3500x2480
Original size 3500x2480
Original size 3500x2480
Original size 3500x2480

// Стойка рецепции

Original size 3500x2480
Original size 3500x2480
Original size 2480x1750

// Новогодний мерч

Эта елочная игрушка — мерч для молодёжного архитектурного пространства, созданный в форме спички как отсылка к сказке «Девочка со спичками». Игрушку продают, чтобы собирать средства на помощь детям и семьям, у которых нет собственного дома или которые живут в сложных условиях. Мерч соединяет идею сказки с реальной поддержкой и миссией пространства.

0