
Разработка учебного кластера для московского кампуса НИУ ВШЭ с природной концепцией.
Из самой природы я позаимствовала формообразование, цветовую палитру. Теплая и природная идея основывается на древесных оттенках. Все это дополняется большим количеством растений, удобными рабочими местами, чтобы было уютно и одновременно практично.
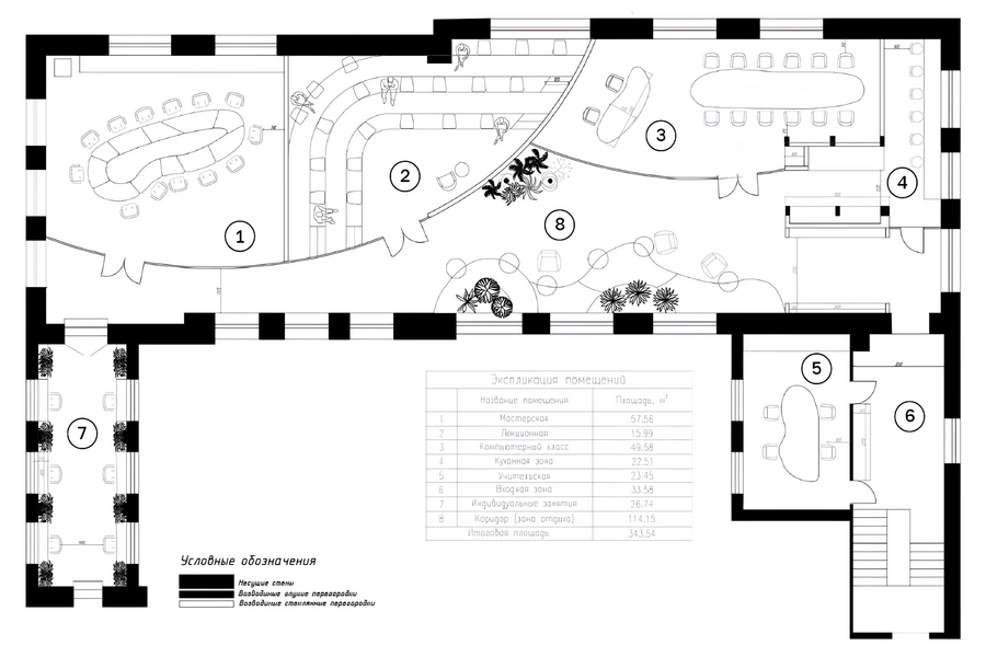
ПЛАНИРОВОЧНЫЕ РЕШЕНИЯ
1. Исходный план 2. План зонирования 3. Планировочное решение с расстановкой мебели
ЭСКИЗЫ ПРОСТРАНСТВА


ИДЕЯ РАБОЧЕГО МЕСТА

Данный стол представляет собой разборную конструкцию из маленьких столов, которые можно при желании отодвинуть и заниматься индивидуально, но основная часть стола — середина, является статичной, для общих вещей и сбора. А стул был придуман под удобство и легкость в передвижении по классу.
ПРОЕКЦИИ КЛАУЗУРЫ БОЛЬШОЙ СТОЛ
1. Стол в разобранном виде 2. Аксонометрия 3. Вид сверху 4. Вид сбоку
ПРОЕКЦИИ КЛАУЗУРЫ МАЛЕНЬКИЙ СТОЛ
1. Аксонометрия 2. Вид сбоку 3. Виз сзади 4. Вид сверху
ВИЗУАЛИЗАЦИИ


Коридор (зона отдыха)
Лекционная
Компьютерный класс
Компьютерный класс
Мастерская
Кухня


Класс для индивидуальных занятий и учительская
Разрез