
Адаптация объекта культурного наследия — усадьбы Орловых-Давыдовых в с. Усолье — под бутик-отель
Цель проекта — сохранение исторической усадьбы через её адаптацию в бутик-отель.
Основная идея и задача проекта — создать интерьер, где историческая архитектура встречается с современным комфортом. Сохраняя дух места и наполняя его новыми функциями.
Идея проекта заключается не просто в обычной реконструкции или ремонте, а в сохранении, «консервации» и адаптации. Через материалы и функциональность, сохраняем отпечаток событий истории и проживания, которые визуально прочитываются в внутри здания.
Месторасположение, территория и схема проезда. Графический дизайн — Юрий Леднев.

Макет усадьбы Графов Орловых-Давыдовых в Музее истории Усольского края м. р. Шигонский.

Фотофиксация объекта. Экстерьер и интерьер. Автор фотографий — Анастасия Сосулина, июль 2024 г.
ОБ ОТЕЛЕ
Это не просто отель, а место притяжения культурного туризма. Здесь история династии Орловых-Давыдовых оживает через интерьеры, события и даже названия номеров. Бутик-отель «Орловы-Давыдовы» станет местом притяжения для нового поколения путешественников, ценящих историю. Атмосферой бутик-отель наполняется в вечернее время с помощью подсветки здания, игрой света выделяются архитектурные детали.
Бутик-отель «Орловы-Давыдовы». Эскстерьер в дневное и в вечернее время.
Летняя терраса с видом на природный парк — будет идеальным местом для завтраков и вечерних мероприятий. Здесь гости смогут ощутить связь с природой и историей.
Терраса «Летник»
Объемно-планировочное решение с функциональным зонированием. Общая площадь — 675 кв. м. Номерной фонд — 8 номеров, каждый с уникальной историей. Количество гостей — до 22 гостей.
Планировочное решение: 1 этаж, 2 этаж и 3 этаж.
Интерьер — это диалог эпох: сводчатые потолки, природные мотивы и история семьи. Каждая деталь рассказывает свою историю.
РЕСЕПШЕН
Ресепшен
Ресепшен встречает гостей сводчатыми потолками и сочетанием материалов. Использован прием визуального ритма с акцентами.
Ресепшен
Приглушённый свет создаёт атмосферу уюта. Деревянные панели скрывают историческую кладку, оставляя её фрагменты для тактильного контакта.
Ресепшен
КАФЕ-БАР
В кафе-баре несколько типов посадки: от уединенных мест до общего стола.
Кафе-бар
Центральный элемент — бар, который расположен вокруг несущей колонны, над баром световая композиция.
Кафе-бар
Природные элементы проникают в интерьер, а локальная подсветка создаёт камерную атмосферу.
Кафе-бар
Кафе-бар
Насыщенные оттенки — одна из особенностей проекта.
ХОЛЛ 2-ГО ЭТАЖА
Холл 2-го этажа
Сохранившейся слой старой штукатурки с фрагментами покраски стен повлиял на выбор цветов для каждого помещения. Именно поэтому в холле 2-го этажа доминируют оттенки оранжевого. А в лобби деревянные панели выкрашены в природный зеленый.
Холл 2-го этажа
На потолочном своде — копия итальянской фрески 1863 года, как отсылка к путешествиям Орловых-Давыдовых в Италию.
Холл 2-го этажа
ЛОББИ
На втором этаже располагается лобби — многофункциональное пространство.
Лобби
В просторном лобби необычный диван и кресла в форме звеньев цепи, вдоль стены стеллажи и портреты главных членов семьи — владельцев усадьбы.
Лобби
Природные мотивы вошли в интерьер при помощи разного декора, отделки и цвета.
Лобби
Лобби
Лобби и антресольная библиотека под сводом
НОМЕРА
Каждый номер назван в честь детей и внуков Орловых-Давыдовых, их истории вплетены в интерьер, превращая проживание в интересный опыт.
Комната Евгении
Она пела в церковном хоре и на семейных вечерах для гостей, была отличной наездницей.
Комната Евгении (номер 2-4 гостя). Особенность комнаты Евгении в том, что есть два раздельных входа в санузел.
При выборе отделки, мебели и элементов декора была использована отсылка к ее увлечениям — за изголовьем кровати в отделке стены использованы состаренные деревянные панели.
Комната Евгении (номер на 2-4 гостя). Различные текстуры создают атмосферу уюта. В комнате есть раскладной диван, поэтому здесь может разместиться до 4-х гостей.
Комната Сергея
Сергей — меценат и первый владелец автомобиля.
Комната Сергея (номер на 2-х гостей). Номер яркий с акцентными деталями, открытая система хранения, при этом скрывается за ширмой.
Особенность комнаты заключается в стеклянной перегородке, которая разделяет саму комнату и санузел.
Комната Сергея (номер на 2-х гостей)
На втором этаже высокие сводчатые потолки. Поэтому, во всех комнатах использован приём с деревянными балками, которые визуально помогают опустить потолок, но при этом не скрывать уникальную архитектурную особенность здания. Помимо этого они служат конструктивным и техническим решением.
Комната Натальи
Главным делом своей жизни считала благотворительную деятельность и воспитание.
Комната Натальи (номер на 2-х гостей). Кровать занимает центральное место, возле кровати деревянная банкетка, основание которой напоминает аркаду, сделанная местными мастерами.
Комната Натальи (номер на 2-х гостей). В комнате есть зона с круглым столом, акцентное полосатое кресло и большой яркий ковёр.
За зеркальными стенами, располагаются санузлы, нововозводимые помещения визуально растворяются в общем пространстве.
Комната Натальи (номер на 2-х гостей). Есть возможность объединения с соседним номером (комнатой Марии).
В отделке комнат (номеров) использованы фрески с растительными мотивами. А декоративная лепнина отражает характер героев.
Интерьеры украшены зарисовками художницы В. Н. Чепинцевой, 1945 год и пленэрными работами различных авторов.
Комната Марии
Комната наполнена глубоким цветом, намёками на творческую деятельность. Подвесы-«купола» над прикроватными тумбами отсылают к её духовному пути.
Комната Марии (Номер на 2-х гостей). В комнате два отдельных спальных места, при необходимости могут объединиться в одно. В свою очередь комната имеет смежную дверь в соседний номер.
Комната Марии (номер на 2-х гостей)
В отделке всех комнат (номеров) присутствуют деревянные панели, которые частично прикрывают исторический кирпич, а также дают возможность скрыть необходимые коммуникации.
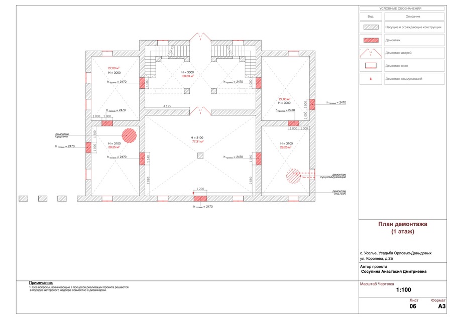
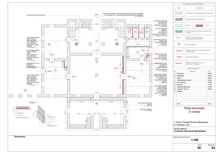
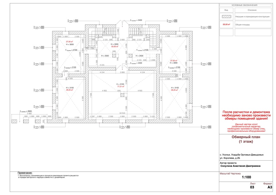
Техническая документация
Техническая документация по реализации проекта. 1 этаж.
Техническая документация по реализации проекта. 2 этаж.
Техническая документация по реализации проекта. 3 этаж.