
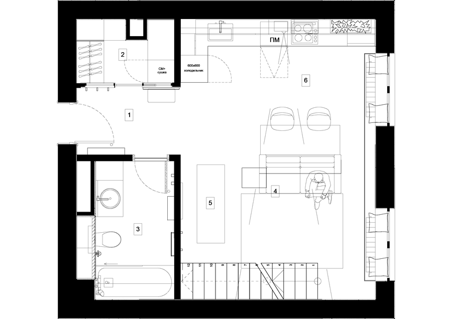
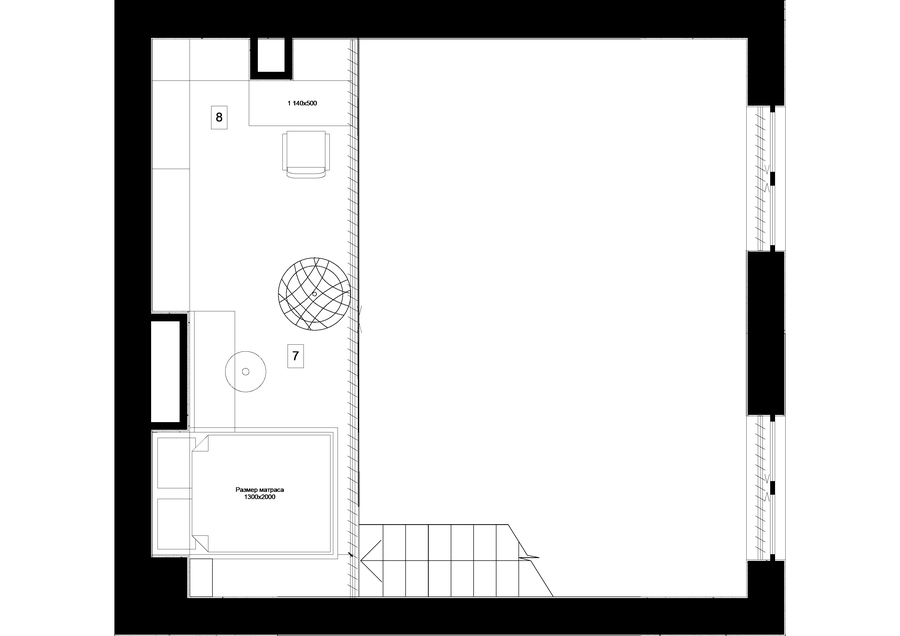
Concept
The object’s address: ZK Seliger City Common Math: 38.8 m² The idea of designing the apartment was inspired by the music work by Sergei Rachmaninov, spring water. The interior is soaked with spring breath. The text influenced the choice of textures, forms, and layouts in the apartment.