

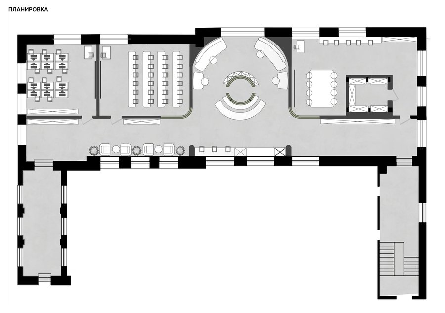
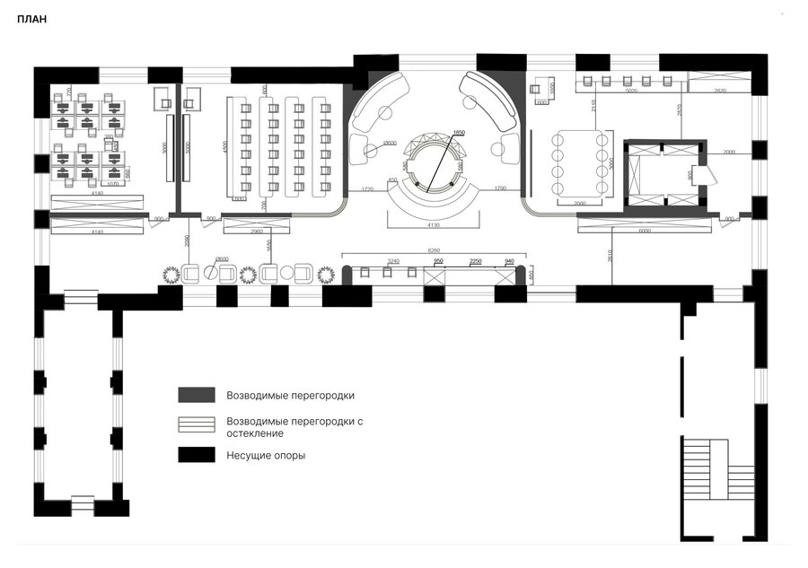
ПЛАНИРОВОЧНОЕ РЕШЕНИЕ//
АКСОНОМЕТРИЧЕСКИЙ ВИД//


В центре кластера находится небольшая оранжерея. Растения в интерьере действуют положительно на нервную систему человека, преобладающий а зеленый цвет в них позволяет глазам отдохнуть от монитора и книг.
ВИЗУАЛИЗАЦИИ//