

Проект гостиничного комплекса, вдохновленного формой стареньких русских гаражей.

Чтобы передать дух камерности, 2 из 4 стены каждого домика оформлены без окон и создают уютную и защищенную атмосферу. Остальное пространство закрыто панорамными окнами, напоминающими «ворота гаража», что обеспечивает богатый естественный свет и живописный вид на реку.
Генеральный план

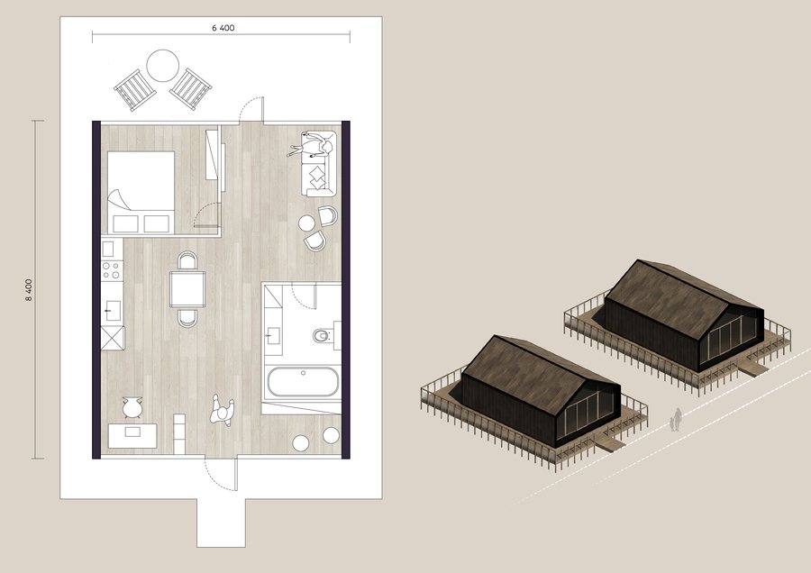
Типовой дом (А)
Типовой дом (В)
Типовой дом (С)
Ресторан
СПА-комплекс
Визуализации