
Альбом чертежей по проекту молодежного пространства и офисов
Проект посвящён разработке интерьера креативного пространства, расположенного в здании Никольских рядов. Концепция интерьера основана на бережном отношении к историческому контексту объекта: классические архитектурные мотивы переосмысливаются и дополняются элементами сюрреализма. Такое сочетание подчёркивает уникальность пространства, придаёт ему выразительность и формирует творческую атмосферу.
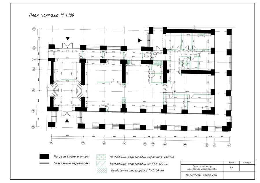
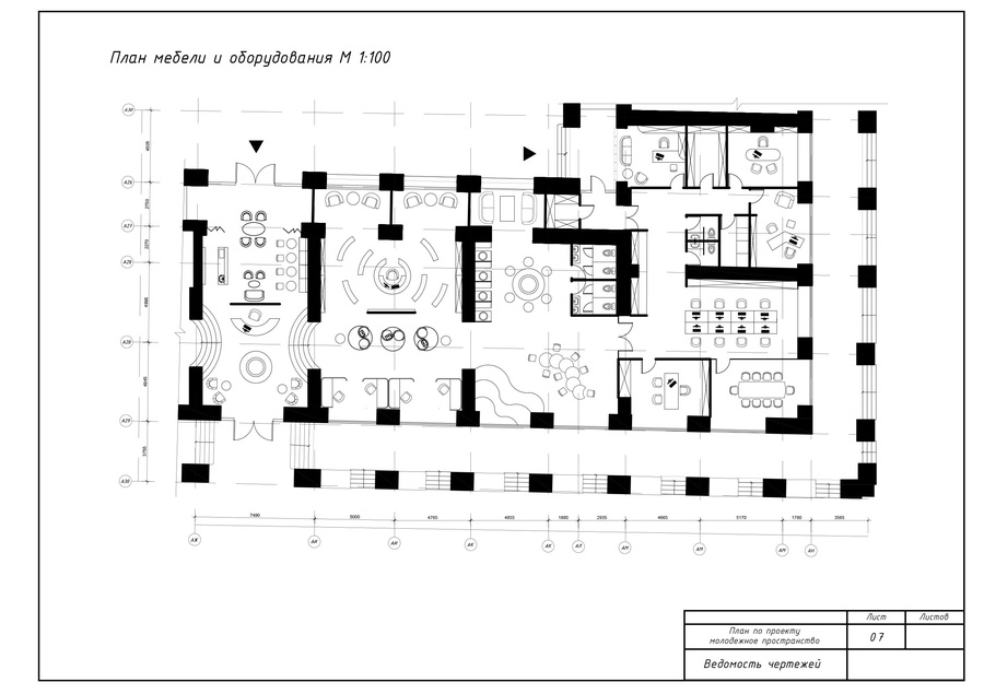
Площадь проектируемого пространства составляет 615 кв. м. Объект расположен по адресу: г. Санкт-Петербург, ул. Садовая, дом 62, первый этаж.
Основную целевую аудиторию составляют жители Санкт-Петербурга — дизайнеры, архитекторы, писатели и фрилансеры в возрасте от 25 до 40 лет.

