
Проект состоит из чертежей, выполненных в программе AutoCAD и визуализаций учебного кластера, разработанного в первом модуле. Чертежи включают в себя планы, отдельные элементы мебели кластера и визуализации.


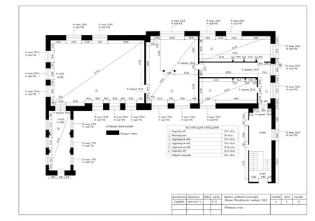
обмерный план и план демонтажа

план монтажа

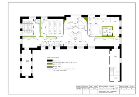
план функционального зонирования


чертежи мебели