
Разрабатываемое пространство находится в историческом здании Никольских Рядов. Это офис с молодежным пространством и шоурумом для кинологов и собак, где сочетаются строгость и приятная, внушающая доверие, безопасность и профессионализм атмосфера.
Общая площадь проектируемого пространства: 615 кв. м
Здание находится по адресу: г. Санкт-Петербург, Садовая улица, 62

Ведомость чертежей

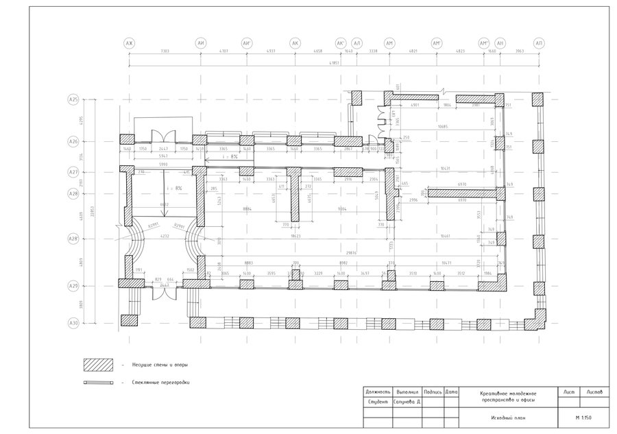
Исходный план

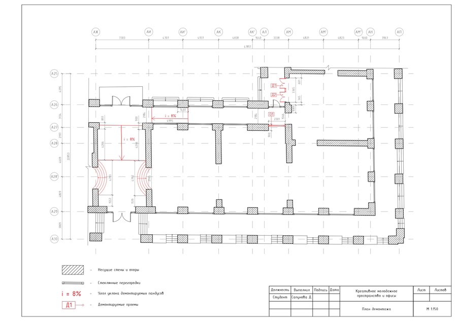
План демонтажа
План монтажа
План функционального зонирования
План мебели и оборудования
План мебели и оборудования с размерами
План мебели и оборудования с маркировкой
Спецификация мебели и оборудования
Чертежи мебели