
Дизайн-концепция интерьера «общественных гостиных» — общественного пространства в ЖК «Садовые кварталы», Москва, ул. Усачёва 15А
Проектируемая территория находится в одном из жилых корпусов ЖК «Садовые кварталы», в 650 метрах от м. Фрунзенская и 450 м от м. Спортивная

ситуационный план
Жёлтым на карте обозначены жилые здания, красным — границы ЖК, а синим — социально значимые объекты: 1. Усачёвский рынок 2. Пожарная часть № 8 3. Школа 4. Клиника реабилитации 5. Школа 6. Научно-исследовательский парк биомедицины

исходные планы помещения: площадь 1-го этажа 135,5 м², площадь 2-го этажа 85,4 м², общая площадь 223,9 м²
Большая общественная квартира мыслится «третьим местом», то есть пространством притяжения людей — местом для творческого объединения и взаимодействия, для формирования горизонтальных связей в сообществе жителей-соседей жилого комплекса. Совместный ужин с приглашённым поваром, собрание по общедомовым вопросам, проведение детского праздника или общение за игрой на рояле или просмотром фильма — всё это возможно реализовать в пространстве спроектированных «общественных гостиных»
функциональное зонирование пространства
Пространство устроено по принципу большой квартиры — основные зоны выполняют функции комнат (от детской до кабинета), таким образом создавая общественное пространство, наполненное уютом и комфортом, которое позволяет человеку в привычной домашней атмосфере отдохнуть от рутины и обрести новые социальные связи
общая изометрия пространства
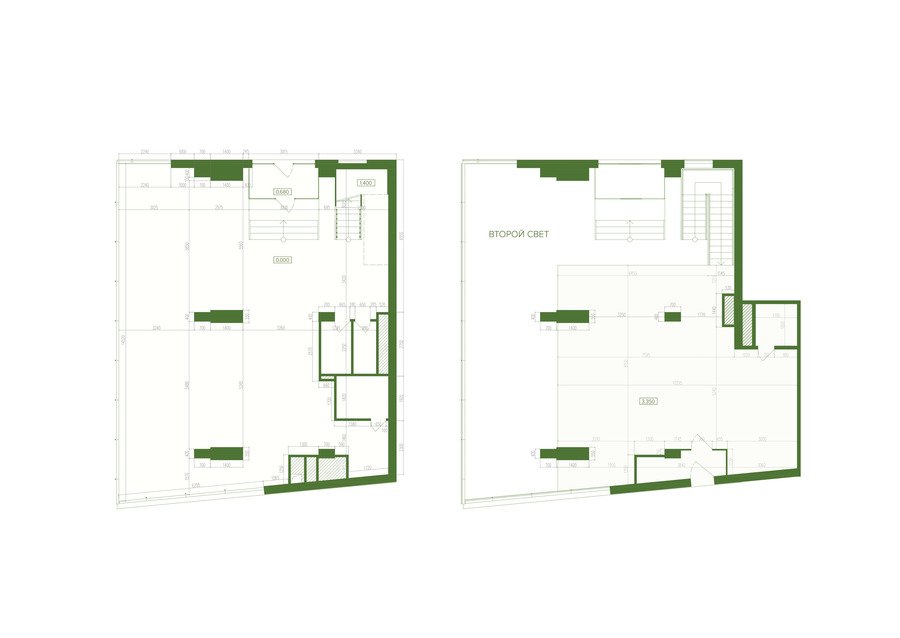
планировочное решение 1 этажа
планировочное решение 2 этажа
план монтажа-демонтажа: красным обозначены демонтируемые перегородки, бежевым — возводимые перегородки из ГКЛ 120 мм, голубым на 2 этаже отмечена стена из стеклоблоков 190×190×80
схема отделки стен и полов 1-го этажа
Стены на 1-м этаже покрываются краской RAL 9016. На пол основных зон кладётся инженерная доска (орех), в санузле используется зелёная керамическая плитка, а в зоне детской — рулонное напольное покрытие Flotex Colour в цвете Metro Moss. Колонна у музыкальной зоны облицовывается мрамором.
схема отделки стен и полов 2-го этажа
Пол коворкинга 2-го этажа выкладывается белой плиткой-мозаикой с чёрной затиркой, а пол санузла — зелёной керамической плиткой. Стены красятся цветом RAL 9016, а возведённая перегородка у зоны групповой работы покрывается грифельной краской.
зона гостиной
зона кухни и общей столовой
зона коворкинга на 2-м этаже